Savoir-faire
Le lien fourni n'est pas valide
30, cours de l'Ile Seguin, 92100 Boulogne Billancourt






Horizons, non-tour inédite de Jean Nouvel vous propose des plateaux spacieux, baignés de lumière. Ils offrent une vue à 360° et de nombreux services.
Gecina dévoile FEAT - Pont de Sèvres, une nouvelle dynamique de quartier qui invite à la rencontre, où chaque instant devient une opportunité de partager, de découvrir, de créer.
Ce quartier prend forme autour de quatre bâtiments — Citylights, Horizons, Sources, Botanic — incarnant chacun une énergie différente inspirée par l’histoire et le patrimoine de Boulogne-Billancourt : Feu, Eau, Air, Terre.
FEAT — Pont de Sèvres s’ouvre à la fois aux usagers des bureaux et aux riverains, tissant des liens forts avec les acteurs locaux et contribuant au dynamisme économique, social et culturel du quartier.
Horizons : L'air
Horizons, emblème de Boulogne-Billancourt, offre 36 000 m² d'espaces de travail et de services innovants dont 15 570 m² disponibles.
Nous vous invitons à respirer l’air frais. Découvrez une non-tour avec un hall cathédral majestueux, orné d’une œuvre d’art monumentale, et des plateaux lumineux offrant des vues sur la Seine, Boulogne-Billancourt, Paris et le ciel. Horizons vous propose des bureaux conçus par Jean Nouvel, avec une transformation élégante signée Saguez, qui fait la part belle aux espaces de services. La programmation d’Horizons met à l’honneur les arts plastiques sous toutes leurs formes, célébrant la curiosité et l’exploration.
FEAT Boulogne : une politique net zéro carbone ambitieuse
Les labels Biodivercity Life, Wired Score Gold, HQE construction et Breeam in use niveau very good certifient la qualité environnementale de l'immeuble. Choisir FEAT, c'est faire le choix de bureaux performants en émissions carbone et en consommation d'énergie. Gecina finance des puits de carbone en France afin de respecter son ambition net zéro carbone. Ainsi, ses immeubles du patrimoine boulonnais sont les premiers à Boulogne dont les 350 tonnes de CO2 par an seront entièrement compensées.
« Cette fiche ne constitue pas une annonce immobilière. Les informations fournies le sont à titre purement indicatif, sans valeur contractuelle. »
36 000 m² de bureaux et de services dont 15 570 m² disponibles divisibles à partir de 650m². Une partie du deuxième étage est déjà aménagée, vous n'aurez plus qu'à poser vos valises !
2 200m² d'espace aménagé avec services à la carte vous sont également proposés au deuxième étage avec des vues imprenables sur la Seine et le parc le Billancourt.
Une signature architecturale Jean Nouvel, un appel fort, un symbole sur la boucle de la Seine.
3 500 m² d’espaces extérieurs accessibles.
Du R+1 au R+7 des vues magnifiques sur la Seine et le parc.
Un lieu de vie et de travail aux nombreux services : YouFirst Manager, App YouFirst Bureau, nouveaux concepts de restauration, terrasses, meeting hub, auditorium, fitness, blabla room …
Des volumes généreux et des espaces de travail ouverts sur une vue imprenable de Paris. Le capacitaire est de 1 personne pour 10m² SU.
Des labels RSE répondant au plus haut niveau d'exigence.
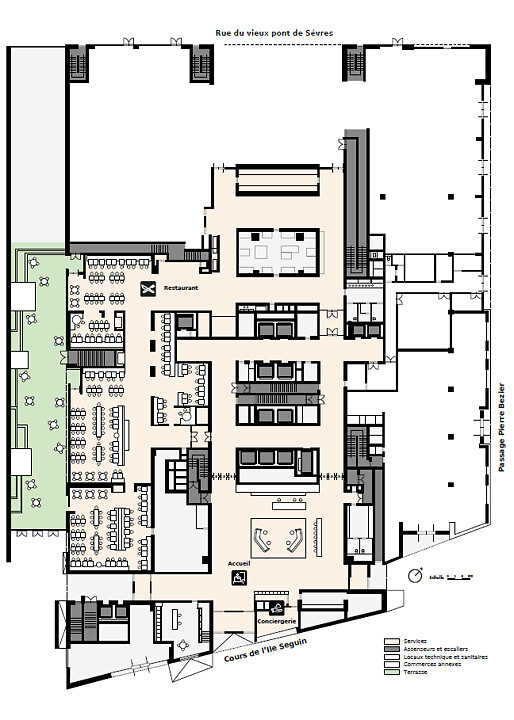
Au restaurant, vos équipes ont le choix : au rez-de-chaussée quatre salles, quatre ambiances au rythme des saisons. Au 5ème étage, un YouFirst Café permet de partager son déjeuner, profiter du service de restauration rapide, se détendre ou travailler dans un lieu convivial.
Une salle de fitness avec vestiaires et douches est à la disposition de vos équipes au premier étage. Equipée de nombreux appareils (tapis de course, vélos elliptiques…), elle est spacieuse et lumineuse et permet à vos collaborateurs d’entretenir leur forme avec vue sur la terrasse extérieure.
Au 5ème étage, un meeting hub avec de multiples salles de réunion donnant sur des espaces extérieurs et un auditorium gradiné.
Pour vos évènements de grandes ampleurs, vous avez accès à un auditorium de 299 places avec une régie intégrée, un foyer et son office, une cuisine d’appoint, à 4 minutes à pied sur Citylights.
Pour vos pauses gourmandes, profitez d'un FEAT Café avec un accès direct aux espaces végétalisés.
Pour booster la créativité et le travail en équipe découvrez la blabla d'Horizons, avec une terrasse de 30m² vue sur la Seine et le parc.
Aire de livraison
Pont de Sèvres - Mairie de Montreuil
Pont de Sèvres - Saint-Denis Pleyel
Pont de Bezons - Porte de Versailles
|
Niveau |
Surface utile brute locative |
Terrasses/Jardin |
Capacitaire maximal estimé |
|
R+19 |
Loué |
- |
Loué |
|
R+18 |
Loué |
- |
Loué |
|
R+17 |
Loué |
- |
Loué |
|
R+16 |
Loué |
- |
Loué |
|
R+15 |
Loué |
- |
Loué |
|
R+14 |
Loué |
- |
Loué |
|
R+13 |
Loué |
- |
Loué |
|
R+12 |
Loué |
- |
Loué |
|
R+11 |
Loué |
- |
Loué |
|
R+10 |
Loué |
- |
Loué |
|
R+9 |
Loué |
- |
Loué |
|
R+8 |
Loué |
- |
Loué |
|
R+7 |
Loué |
- |
Loué |
|
R+6 |
Loué |
- |
Loué |
|
R+5 |
Etages de services |
2 744 m² |
Etage de services |
|
R+4 |
4 125 m² |
- |
373 |
|
R+3 |
4 211 m² |
- |
373 |
|
R+2 |
4 200 m² |
- |
369 |
|
R+1 |
3 034 m² |
30 m² |
239 |
|
RDC |
Etage de services |
100 m² |
Etage de services |
|
TOTAL |
15 570 m² |
3 500 m² |
1 354 |
Disponibilités immédiates ou ouvertures prochaines, nos lieux de vie et de travail vous ouvrent leurs portes en grand.





