Savoir-faire
Le lien fourni n'est pas valide
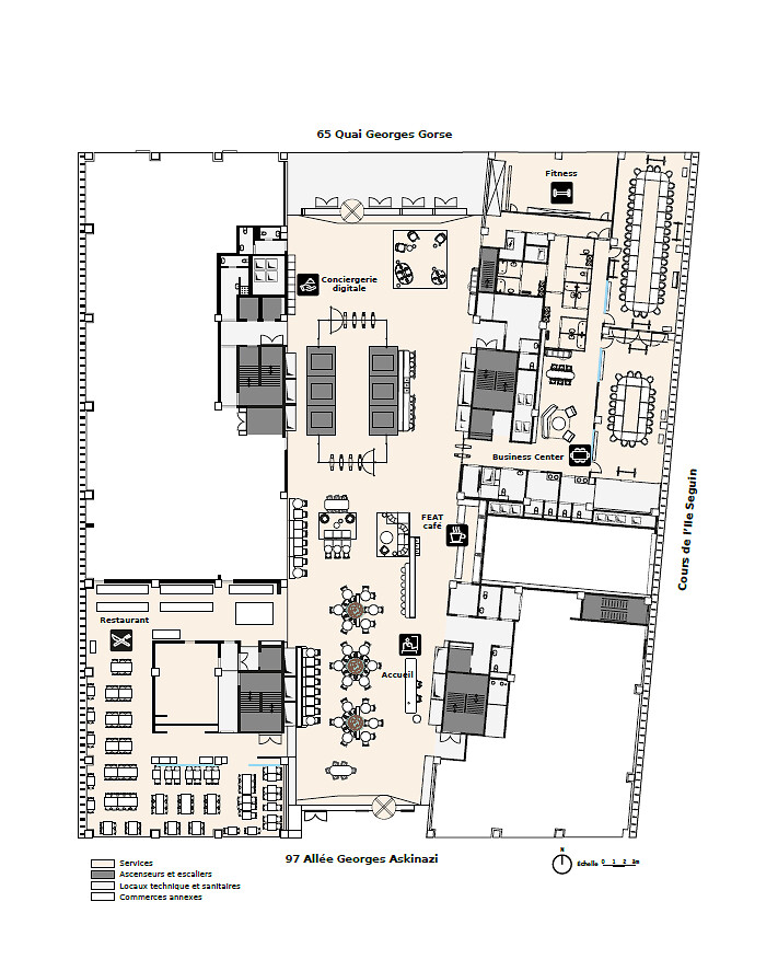
65, quai Georges Gorse, 92100 Boulogne Billancourt



Sources, une œuvre architecturale de Norman Foster, offrant une expérience de travail unique entre Seine et parc à quelques minutes du cœur de Paris.
Gecina dévoile FEAT - Pont de Sèvres, une nouvelle dynamique de quartier qui invite à la rencontre, où chaque instant devient une opportunité de partager, de découvrir, de créer.
Ce quartier prend forme autour de quatre bâtiments — Citylights, Horizons, Sources, Botanic — incarnant chacun une énergie différente inspirée par l’histoire et le patrimoine de Boulogne-Billancourt : Feu, Eau, Air, Terre.
FEAT — Pont de Sèvres s’ouvre à la fois aux usagers des bureaux et aux riverains, tissant des liens forts avec les acteurs locaux et contribuant au dynamisme économique, social et culturel du quartier.
Sources : L'eau
Sources vous invite à découvrir ses espaces lumineux avec vue sur la Seine et son atrium unique de 1.000 m², baigné de lumière et de sérénité. Vous apprécierez l’espace de plateaux de 1.300 m² à 2.600 m², connectés par des passerelles, avec des espaces extérieurs à chaque niveau.
Chez Sources, nous créons pour vous un quotidien serein, agrémenté par la fraîcheur de l’eau.
Nous vous invitons à vivre dans une oeuvre architecturale conçue par le célèbre architecte Sir Norman Foster et à vous installer au bord de l’eau dans un décor signé Saguez Favretto. La programmation de Sources est axée sur le bien-être et le lâcher prise, avec des animations polysensorielles tout au long de l’année. Vous découvrirez une source inépuisable de moments paisibles et revitalisants pour mieux vivre et travailler sous le signe de l’eau.
FEAT Boulogne : une politique net zéro carbone ambitieuse
Cet édifice se distingue par les certifications HQE construction et Breeam in use very good, démontrant ainsi son engagement envers les normes RSE.
Choisir FEAT, c'est faire le choix de bureaux performants en émissions carbone et en consommation d'énergie. Gecina finance des puits de carbone en France afin de respecter son ambition net zéro carbone. Ainsi, ses immeubles du patrimoine boulonnais sont les premiers à Boulogne dont les 350 tonnes de CO2 par an seront entièrement compensées.
« Cette fiche ne constitue pas une annonce immobilière. Les informations fournies le sont à titre purement indicatif, sans valeur contractuelle. »
Une architecture signée Norman Foster. Disponible à partir du 1er trimestre 2026.
18 240 m² dont 7 500 m² disponibles. Un atrium de 1 000 m², haut de 7 étages et 10 passerelles intérieures.
400 m² de terrasse panoramique ouverte avec une vue à 360°.
Des services repensés par Saguez&Partners avec 2 offres de restauration, des salles de réunion modulables et un fitness. Par ailleurs, les utilisateurs pourront profiter de l'auditorium et du fitness de Citytlights à 3min à pied.
297 places de parking disponibles dont certaines électrifiées et des places de vélos.
Une très bonne accessibilité en transports en commun avec les lignes 9, 15 et le T2.
Un meeting hub avec des salles de réunion modulables et un business center sur Horizons à moins de 2 min à pied.
Oubliez les restaurants banals et les repas impersonnels, le restaurant vous invite à une expérience culinaire exceptionnelle. Avec vue sur le parc de Billancourt, il offre un oasis de saveurs et de convivialité. Dégustez une cuisine variée, élaborée avec des produits frais et de saison.
Sources vous accompagne dans votre bien être avec un espace fitness : enchaînez une séance de pilate vivifiante avant de démarrer votre journée, décompresser après une réunion intense avec un cours de yoga relaxant et plein d'autres activités; façonnez votre quotidien selon vos envies.
Une autre salle de fitness de 300 m² est également accessible sur Horizons.
L'atrium central de Sources s'élève sur 7 étages avec 10 passerelles intérieures qui relient les plateaux de bureaux lumineux. Avec un Youfirst Café, cet espace modulable favorise les échanges et la créativité.
Grace à la mutualisation des services des actifs du patrimoine de Gecina à Boulogne, un auditorium de 299 places assises accessible sur Citylights (actif du patrimoine Gecina) à 5minutes à pied, avec une régie intégrée, un foyer et son office, une cuisine d’appoint, pour tous vos évènements de grandes ampleurs; un auditorium de 134 places sur Horizons à moins de 2 min à pied.
Pont de Sèvres - Saint-Denis Pleyel
Pont de Sèvres - Mairie de Montreuil
Pont de Bezons - Porte de Versailles
|
Niveau |
Surface utile brute locative Ouest |
Surface utile brute locative Est |
Surface utile brute locative totale |
|
Mezz |
338m² |
|
338m² |
|
R+7 |
1327m² |
584m² + terrasse 400m² |
1911m² |
|
R+6 |
Loué |
Loué |
Loué |
|
R+5 |
Loué |
Loué |
Loué |
|
R+4 |
Loué |
Loué |
Loué |
|
R+3 |
Loué |
Loué |
Loué |
|
R+2 |
1383m² |
1375m² |
2758m² |
|
R+1 |
1377m² |
1361m² |
2739m² |
|
Total |
4426m² |
3320m² |
7746m² |
Disponibilités immédiates ou ouvertures prochaines, nos lieux de vie et de travail vous ouvrent leurs portes en grand.


