19-21, rue de Vienne, 75008 Paris

Opportunité 2025
  • À propos
  • Prestations & Services
  • RSE
  • Quartier & Accès
  • Plans et surfaces
  • Responsable commercial
9 photos
Précédent

Signature

19-21, rue de Vienne, 75008 Paris

Opportunité 2025

24 495 m² *

À deux pas de la gare Saint-Lazare, Signature s’impose comme une nouvelle référence du Quartier Central des Affaires.

Conçu par le cabinet Dubuisson, l’immeuble incarne une vision contemporaine du travail : ouverte, durable et inspirante. 
Ses lignes épurées, ses volumes baignés de lumière et ses espaces végétalisés offrent une expérience de travail à la fois fluide, élégante et connectée à la ville.

 

Des bureaux au service de la performance 

Répartis sur huit étages, 24 700 m² de bureaux modulables répondent à toutes les organisations de travail. 

Les vastes plateaux — jusqu’à 3 300 m² — se prolongent vers l’extérieur grâce à 2 500 m² d’espaces végétalisés : deux patios paysagers et un rooftop panoramique offrant une vue à 360° sur tout Paris. Leur modularité s’adapte à tous les types d’aménagement, open-space, mixte ou cloisonné.
 

Une localisation stratégique et connectée 

Directement relié à la gare Saint-Lazare et à la station Saint-Augustin, Signature bénéficie d’une desserte exceptionnelle vers La Défense, Châtelet, la Gare du Nord et l’aéroport d’Orly via les lignes 3, 9, 12, 13, 14 et le RER E. 
Une adresse centrale, visible et facilement accessible, au cœur du QCA parisien. 

 

Un écosystème professionnel d’envergure 

Aux côtés de son voisin 7 Madrid, Signature forme un ensemble tertiaire de 45 000 m². Un pôle d’affaires où synergies et extensions sont possibles, offrant aux entreprises un environnement propice à la collaboration et à la croissance. 

 

Des services qui ouvrent les perspectives 

Signature élève l’expérience de travail à un niveau rare. 
Espaces de restauration raffinés et healthy, rooftop avec vue sur Paris pour des événements d’exceptions, fitness indoor et outdoor, conciergerie, espaces de coworking et auditorium inspirants : tout est réuni pour conjuguer excellence, confort et art de vivre au bureau. 

 

Une expérience durable

L’immeuble fonctionne à 100 % d’électricité verte et au biogaz, et vise les certifications HQE, BREEAM Excellent et WiredScore
Les mobilités douces y sont pleinement intégrées avec 274 places vélos, 100 emplacements électrifiés et un environnement paysager qui prolonge la nature au cœur du bâtiment. 

Voir plus

Les points forts de cet espace

Architecture

Repensé par le cabinet Dubuisson, Signature conjugue lignes contemporaines, volumes généreux et lumière naturelle. 

Localisation

Au cœur du QCA, à deux pas de la gare Saint-Lazare et de la station Saint-Augustin, l’immeuble offre une accessibilité exceptionnelle vers tout Paris. 

Surface

24 700 m² de bureaux répartis sur 8 étages, avec de vastes plateaux modulables jusqu’à 3 300 m². Possibilité d’extension pour 45 000m² avec l’immeuble 7 Madrid et l’hôtel particulier attenant. 

Espaces verts

3 000m² de surfaces extérieures dont 2 500 m² accessibles.

Vue

Terrasses et Rooftop avec vues 360° sur les plus grands monuments de Paris : la tour Eiffel, le Grand Palais, Montmartre, Saint-Augustin, ou encore La Défense.

Services

Ouvrez vos perspectives au goût - by Baxter Storey
Le food court, workcafé, rooftop

Ouvrez vos perspectives au souffle by MMSport
Un espace fitness d’exception sans compromis.

Ouvrez vos perspectives aux échanges - By welcome at work
Avec des services sur mesures

RSE

Immeuble bas carbone alimenté en électricité verte et biogaz, certifié NF HQE et BREEAM Excellent. Décret tertiaire 2040 visé.

Les services disponibles

Espace restauration - par Baxter Storey

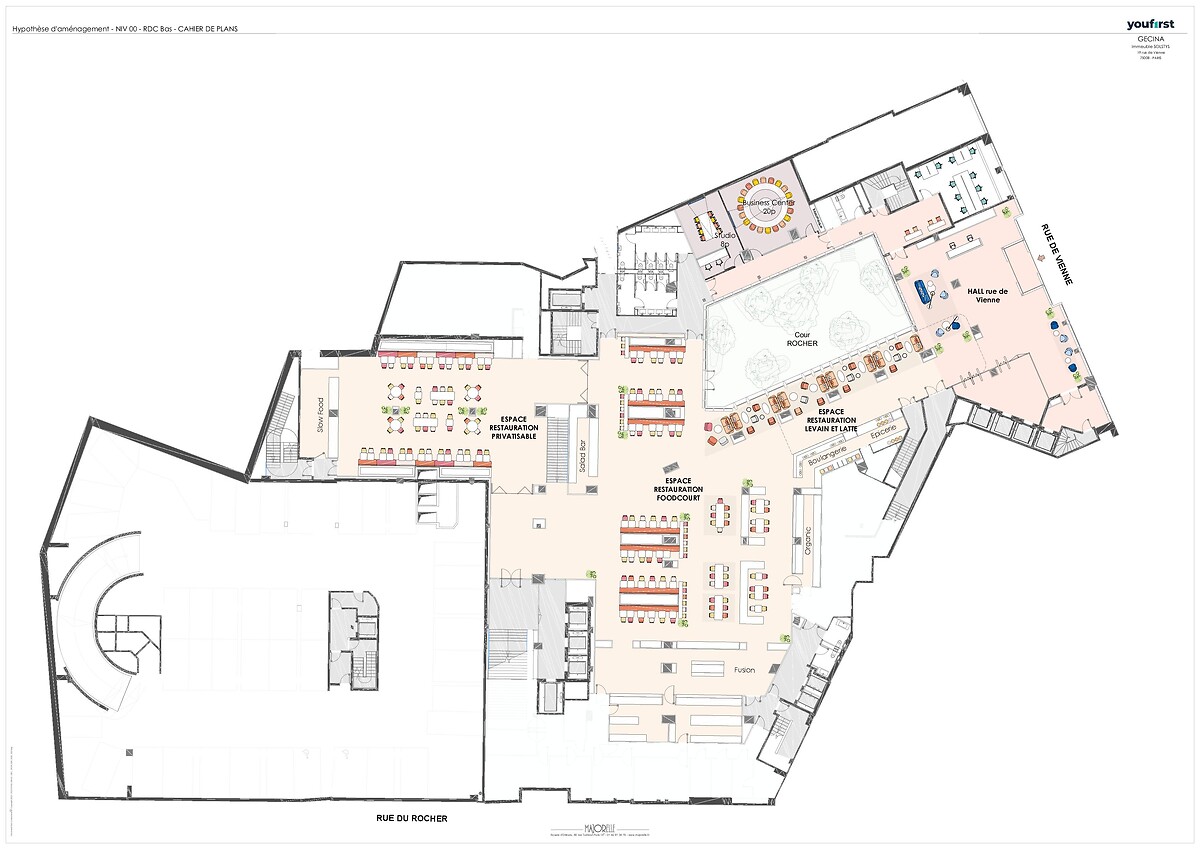
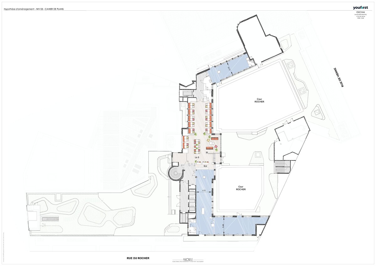
L’offre de restauration se décline en plusieurs expériences. "Le Food Court", lieu de vie fédérateur, s’adapte à tous les rythmes. "Levain & Latte" propose une pause alliant boulangerie artisanale et culture du café. Sur le rooftop, "Le 8" offre une expérience gastronomique unique avec vue panoramique. Le tout est complété par un room service sur mesure, pour une expérience fluide et haut de gamme au quotidien.

Espace fitness - par MMSport

Accessible toute l’année, l’offre fitness indoor & outdoor propose une expérience premium complète, mêlant boxe, pilates reformer, hyrox. Cours intensifs de HIIT et de spinning, et moments de bien-être avec yoga et méditation. La Digital Room offre un accès illimité à plus de 200 cours à la demande, complétée par les frigos connectés Fitology pour une alimentation healthy au quotidien.

Rooftop végétalisé

Suspendu à 1 250 m² au-dessus de Paris, le rooftop invite à vivre le travail autrement. Café panoramique, yoga au lever du soleil, concerts privés, barbecues d’été ou projections en plein air : un lieu d’exception pour vos événements corporate. 

Services à la carte - par Welcome at work

Opérés par Welcome at Work, une offre de services sur-mesure facilitent le quotidien : meeting hub collaboratif, business center et auditorium ERP 5 de 198 places, accueil, hôtesse et conciergerie. Tout est à portée de main.

Engagements, labels et certifications

Découvrez notre engagement pour une haute qualité environnementale au quotidien.
Dans le cadre de notre engagement CANOP 2030, nous visons la neutralité carbone d'ici 2030. Depuis 2017, nous avons déjà réduit nos émissions de CO₂ de 40 %. Pour aller plus loin, nous avons mis en place un plan de sobriété énergétique visant à optimiser la consommation d’énergie dans tous nos bâtiments, avec l’aide de notre Energy Manager, d’Advizeo et de nos équipes de maintenance. 
Les actions clés de ce plan sont :
- Task forces actives depuis juillet 2022, permettant des économies d’énergie de 10 % à 35 % sur chaque site. 

- Plateforme de suivi en temps réel : surveillance constante des consommations via télésurveillance et capteurs de température, avec des ajustements immédiats si nécessaire. 

- Consignes de température optimisées : 19°C en hiver, 26°C en été sur les postes de travail, et réduction à 14°C en cas d’inoccupation. 
 
Ce dispositif nous permet de progresser vers notre objectif de neutralité carbone, tout en réduisant efficacement notre empreinte énergétique. 
Biodivercity
Bream RFO Excellent
HQEBatimentdurable
Ozmoz
Wiredscore - Gold

Découvrez les points d'intérêts du quartier

Accès sur place

VELO

274 places

AUTO

168 places voitures, 61 places motos

Accès en transports en commun

Métro

Métro Métro 3

Porte de Levallois Bécon - Gallieni

Saint-Lazare
1 min
Métro Métro 12

Mairie d'Aubervilliers - Mairie d'Issy

Saint-Lazare
1 min
Métro Métro 13 Asnières Gennevilliers Les Courtilles  - Châtillon Montrouge

Asnières Gennevilliers Les Courtilles - Châtillon Montrouge

Saint-Lazare
1 min
Métro Métro 14

Mairie de Saint-Ouen - Olympiades

Saint-Lazare
1 min
Métro Métro 9

Pont de Sèvres - Mairie de Montreuil

Saint-Augustin
6 min

RER

RER RER E
Haussman, Saint-Lazare
1 min

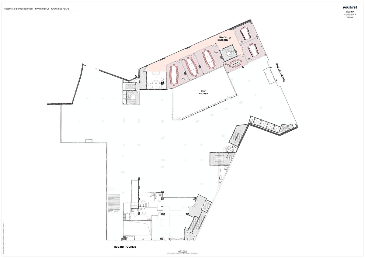
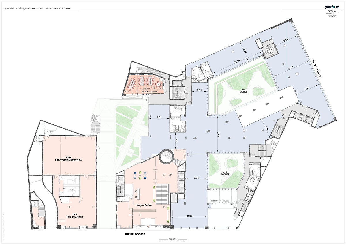
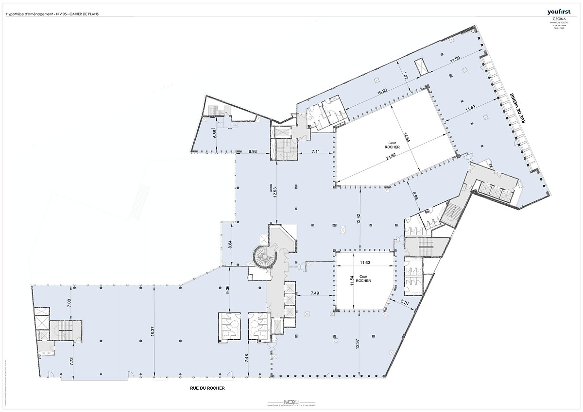
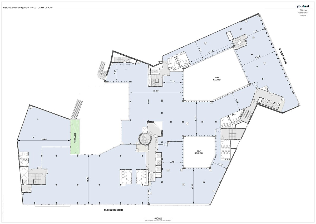
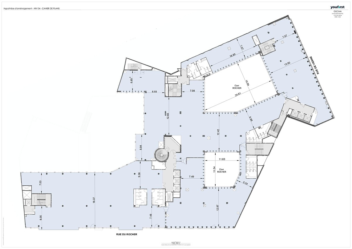
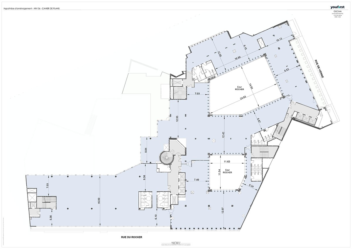
Plans du lieu

Niveau 08

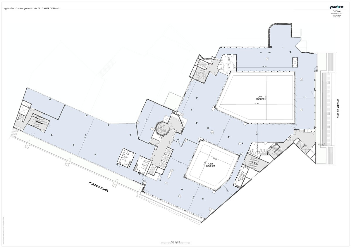
Niveau 07

Niveau 06

Niveau 05

Niveau 04

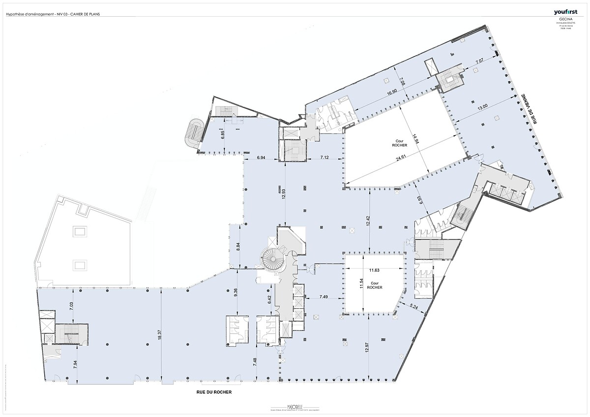
Niveau 03

Niveau 02

Niveau 01

Niveau entresol

Niveau RDC haut

Niveau RDC bas

Niveau -01

Exemple d'aménagement cloisonné

Exemple d'aménagement semi cloisonné

Exemple d'aménagement ouvert

Tableau des surfaces disponibles

Niveau

Surface utile brute locative

Terrasses/Jardin

Capacitaire maximal estimé

RDC

423 m²

 

 

R+1

1 190 m²

 

 

R+2

3 377 m²

 

 

R+3

3 113 m²

 

 

R+4

3 121 m²

 

 

R+5

3 078 m²

 

 

R+6

2 760 m²

 

 

R+7

2 103 m²

 

 

R+7

368 m²

 

 

TOTAL SUPERSTRUCTURE

 20 333 m²

 

 

 

 

 

 

Place du village

1 813 m²

 

 

Work Café

251 m²

 

 

Fitness

405 m²

 

 

Auditorium

575 m²

 

 

Archives

718 m²

 

 

QPPC Infra

597 m²

 

 

TOTAL IMMEUBLE

24 692 m²

 

 

Les principaux éléments techniques de cet espace

Nombre d’étages :
8 étages  
Surface totale :
24 692 m²
Réglementation immeuble :
Code du travail
Chauffage / Climatisation :
Chauffage : Réseau de chaleur urbain via CPCU / Ventilation : Mécanique via CTA / Climatisation : Réseau de froid urbain via fraicheur de Paris 
Léa SCHAUD

Contactez-nous

Léa SCHAUB

Responsable Commercialisation