18 Rue Treilhard, 75008 Paris

Available
Commerces
  • In regards to
  • Prestations & Services
  • Neighbourhood & Acces
  • Floor plans and surfaces
  • Sales contacts
5 Pictures
Back

Treilhard

18 Rue Treilhard, 75008 Paris

Available
Commerces

672 sq.m

The strengths of this space

Surface

Un commerce de 672 m² disposant d'un accès indépendant

Location

En plein coeur du 8ème arrondissement, une zone de chalandise attractive

Architecture

La coque dispose d'une possibilité d'extraction pour accueillir tous type de concepts.

Services available

Commitments, labels and certifications

Discover our commitment to high environmental quality on a daily basis
As part of our CAN0P-2030 (Carbon Net Zero Plan) commitment, we're aiming for carbon neutrality by 2030. Since 2017, we've already reduced our CO₂ emissions by 40%. To go even further, we've rolled out an energy sobriety plan to optimize energy consumption in all our buildings, with the help of our Energy Manager from Advizeo, and our maintenance teams. 
The key initiatives of this plan are: 
The key initiatives of this plan are:
• Task forces active since July 2022, helping make energy savings on each site of between 10 and 35%. 

• Real-time monitoring platform: continuous consumption watch via remote monitoring and temperature sensors, with instant adjustments where required. 

• Optimized temperature recommendations: 19°C in winter, 26°C in summer across all workstations, reduced to 14°C if unused. 

This initiative allows us to make progress toward our goal of carbon neutrality while effectively reducing our energy footprint.

Discover the area's points of interest

On-site access

Quai de livraison disponible avec monte charge desservant la coque

Public transport access

Metro

Metro Métro 9

Pont de Sèvres - Mairie de Montreuil

Miromesnil
9 min
Metro Métro 13 Asnières Gennevilliers Les Courtilles  - Châtillon Montrouge

Asnières Gennevilliers Les Courtilles - Châtillon Montrouge

Miromesnil
9 min
Metro Métro 13 Saint Denis Université - Châtillon Montrouge

Saint Denis Université - Châtillon Montrouge

Miromesnil
9 min
Metro Métro 2

Porte Dauphine - Nation

Villiers
15 min
Metro Métro 3

Porte de Levallois Bécon - Gallieni

Villiers
15 min

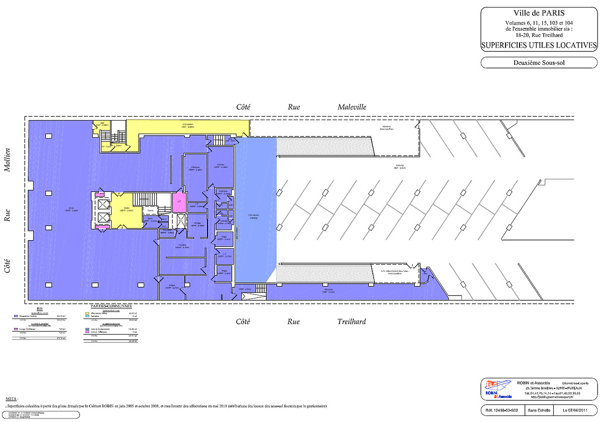
Site plans

Plan de l'espace commercial

Manon Guisbert

Contact us

Manon Guisbert

Retail Marketing Manager