96, avenue Charles-de-Gaulle, 92200 Neuilly sur Seine

Disponible
  • À propos
  • Prestations & Services
  • RSE
  • Quartier & Accès
  • Plans et surfaces
  • Responsable commercial
4 photos
Précédent

96/104 CDG

96, avenue Charles-de-Gaulle, 92200 Neuilly sur Seine

Disponible

5 238 m²

Le 96/104 Charles de Gaulle : un ensemble immobilier au cœur de Neuilly

Situé sur l'axe Paris – Neuilly – La Défense, le 96/104 Charles de Gaulle est un ensemble immobilier composé de trois bâtiments, à l'architecture revisitée par le cabinet Lobjoy & Bouvier. Le 96/104 CDG offre 10 520 m² de bureaux avec des plateaux de travail flexibles de 250 à +1 000m² en moyenne. Au cœur d'un quartier en pleine mutation, cet immeuble bénéficie d'un cadre exceptionnel mêlant prestige, dynamisme et l'ambition de Neuilly-sur-Seine, avec ses nouvelles allées arborées, facilitant les mobilités douces.  

 

Un cadre de vie moderne et durable 

Le 96/104 Charles de Gaulle est conçu pour être un lieu de vie et durable, offrant des espaces flexibles baignés de lumière naturelle et un panel de services pour faciliter le quotidien : restaurant de 250 couverts, cafétéria de 1 000 m², conciergerie avec casiers connectés, deux quais de livraison pour une logistique fluide, accueil, hall double hauteur et salles de réunion en premier jour espaces extérieurs. Les collaborateurs sur place bénéficient d’un environnement verdoyant avec 1 350 m² de jardins et de terrasses. Tout est pensé pour offrir une expérience agréable et efficace. 

 

Une accessibilité optimale 

Localisé sur l'axe majeur entre le Pont de Neuilly et la Place de l'Étoile, le 96/104 Charles de Gaulle se trouve à seulement 2 minutes à pied de la ligne 1. Il permet de rejoindre en 5 minutes la nouvelle esplanade de la Porte Maillot et 5 minutes de la Défense, facilitant l'accès à tous point de Paris. 

Voir plus

Les points forts de cet espace

Localisation

Les Allées de Neuilly déroulent un paysage urbain réinventé avec de
nouveaux espaces réservés à la promenade, des voies à circulation réduite... Un quartier en pleine métamorphose bénéficiant de 10 ha d’espaces verts publics et d’une piste cyclable en double sens en pied d’immeuble. Un environnement business sur une avenue prisée et reconnue où se sont installées de nombreuses entreprises telles que la fondation Louis Vuitton.

Surface

Un ensemble immobilier de 10 500 m²(un bâtiment) pouvant accueillir jusqu’à 600 personnes.

Services

De nombreux services, notamment un café, un restaurant de 250 couverts, un accueil, un hall, une business center, une application mobile, une conciergerie digitale et des casiers connectés.

Espaces verts

1 350 m² d’espaces végétalisées avec jardins et plus de 400 m² de terrasse privative.

RSE

Labellisé BBC-Rénovation.

Les services disponibles

Rooftop

Respirez. 4 terrasses végétalisées, 245 m² içi suspendus entre ciel et ville et 400m² plus haut. Des bulles de verdure où vos idées prennent l'air. Ici, la pause devient inspiration, et chaque escapade en plein air réinitialise votre journée.

Le Work Café

Votre QG informel. Attenant à l'espace de restauration, le work café devient votre refuge entre deux rendez-vous. Un café qui se transforme en brainstorming. Parce que les meilleures idées naissent souvent hors des salles de réunion.

L'Espace Restauration Modulable

Imaginez un espace où tout cohabite : votre pause déjeuner avec Foodchéri, un auditorium pour vos présentations, une salle de fitness pour évacuer la pression, des vestiaires et douches.

Restauration, événementiel, sport, détente : tout se trouve au même étage. Pas de temps perdu, pas d'étages à changer. Juste un lieu pensé pour fluidifier votre journée, du premier café au dernier workout.

Les Salles de Réunion

290 m² pour donner vie à vos projets. De 10 à 30 personnes, chaque salle s'adapte à votre rythme. Réunion stratégique, workshop créatif ou présentation client : ici, l'espace suit vos ambitions, pas l'inverse.

Les casiers connectés

Vos colis livrés directement à votre bureau.

Fini les allers-retours ou les colis perdus. Grâce aux casiers connectés opérés par sezaam, recevez vos livraisons en toute sécurité, 24h/24. Une notification, un code, et c'est récupéré.

Engagements, labels et certifications

La haute qualité environnementale :
Dans le cadre de notre engagement CANOP 2030, nous visons la neutralité carbone d'ici 2030. Depuis 2017, nous avons déjà réduit nos émissions de CO₂ de 40 %. Pour aller plus loin, nous avons mis en place un plan de sobriété énergétique visant à optimiser la consommation d’énergie dans tous nos bâtiments à garder, avec l’aide de notre Energy Manager, d’Advizeo et de nos équipes de maintenance.



Les actions clés de ce plan sont :
• Task forces actives depuis juillet 2022, permettant des économies d’énergie de 10 % à 35 % sur chaque site.

• Plateforme de suivi en temps réel : surveillance constante des consommations via télésurveillance et capteurs de température, avec des ajustements immédiats si nécessaire.

• Consignes de température optimisées : 19°C en hiver, 26°C en été sur les postes de travail, et réduction à 14°C en cas d’inoccupation.

• Conforme aux objectifs du Décret Tertiaire 2040
BBC - Rénovation

Découvrez les points d'intérêts du quartier

Accès en transports en commun

Métro

Métro Métro 1

La Défense - Chateau de Vincennes

Les Sablons
2 min
Métro Métro 1

La Défense - Chateau de Vincennes

Neuilly-Porte Maillot
13 min

RER

RER RER C
Neuilly-Porte Maillot
13 min
RER RER E
Neuilly-Porte Maillot
13 min

Visite virtuelle & plans du lieu

RDC

RDC projection

R+1

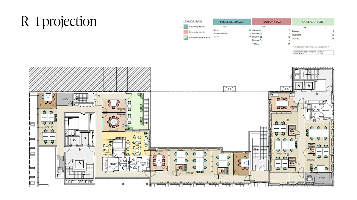
R+1 projection

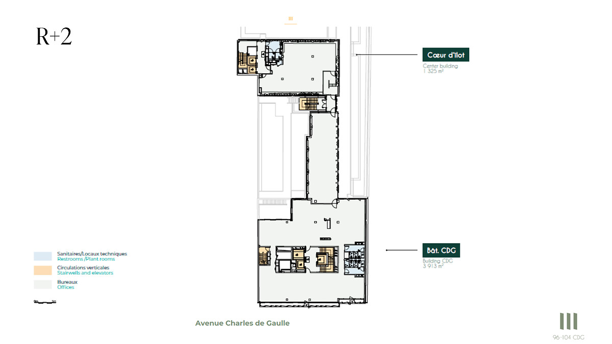
R+2

R+2 projection

R+2, hypothèse d'aménagement

R+2, hypothèse 2 aménagement

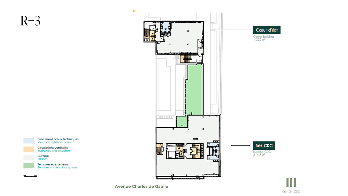
R+3

R+3, hypothèse aménagement

R+3, hypothèse 2 aménagement

R+4

R+4 projection

R+4, hypothèse aménagement

R+4, hypothèse 2 aménagement

R+5

R+6

R+7

Tableau des surfaces disponibles

Niveau

Surface utile brute locative

Terrasses/Jardin

Capacitaire maximal estimé

BATIMENT 1

 

 

 

R+7

454 m²

14 m²

40

R+6

483 m²

57 m²

40

R+5

552 m²

 

40

R+4

553 m²

 

40

R+3

553 m²

145 m²

40

R+2

741 m²

 

 

R+1

464 m²

26 m²

 

RDC

113 m²

 

 

TOTAL BAT. 1

3 913 m²

241 m²

 

 

 

 

 

BATIMENT 2

 

 

 

R+4

274 m²

 

50

R+3

274 m²

 

50

R+2

269 m²

 

 

R+1

267 m²

 

 

RDC

244 m²

 

 

TOTAL BAT. 2

1 326 m²

 

 

 

 

 

 

TOTAL ENSEMBLE

5 238 m²

424 m²

 

 

 

 

 

 

 

 

 

 

 

 

 

 

 

 

 

 

 

 

 

 

 

 

 

 

 

 

 

 

 

 

 

Léa Martinez

Contactez-nous

Léa Martinez

Responsable de commercialisation